|
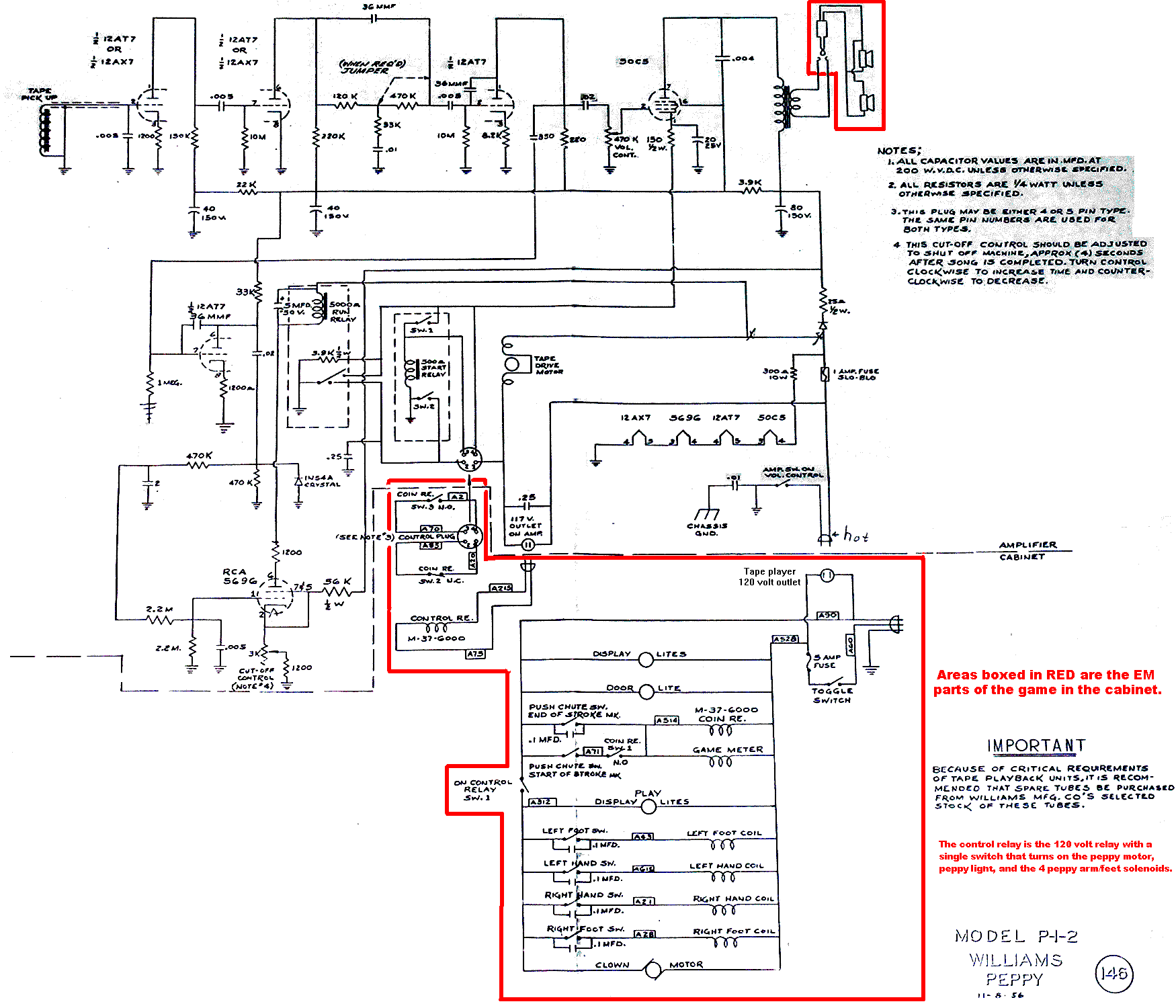
Description: Peppy the Clown, Williams #146, 4/56, uses a Cousino proprietary 1/4" cart endless loop tape sound system, sometimes with multiple conductive tape segments. The length of the audio program between the conductive tape segments determines the time duration of each play of the game. Or the audio silence in between the songs that controls the game duration. It's hard for me to say which way was originally used - the schematic shows the silence method, but the original tape I found has the conductive segments. The vacuum tube amplifier has an integrator and monostable circuit which keeps the "run" relay energized as long as there is no more than four seconds of silence. There is a potentiometer on the outside of the tape player to make this adjustment. But which way is really used on the player I am not sure because it seems setup to use both! The Peppy Cousino tape player uses tubes as this is from the 1950s (later Cousino players, like the one used in Zoltan, were solidstate). The schematic shows the tube circuits. There are a total of nine Peppy songs. But I only have four of the songs I got from an original tape. I am using a solidstate device to play my songs which can be seen here. I highly recommend this device has it does away with the original and obsolete Cousino tape player. The box works flawlessly, is plug-and-play, and it absolutely sounds great (but it also sounds original too). Here's a MP3 sound file of four peppy songs that I found: Peppy MP3. Here's another sound file from M.Clayton that has 5 more songs: More Peppy MP3. The game was designed for kids, Peppy the clown talked and sang to calliope music, moving his head from side to side, player could press buttons on the front console which controlled Peppy’s arm and leg movement. Similar to United Billard's 1970s Bimbo Three Ring Circus. Got an email from gentleman that was a former Disneyland cast member: "I was the the Arcade mechanic foreman from 1997 to 2002. WDI (Walt Disney Imagineering) converted a Peppy to a 'Hoofin Henry' dancing bear that was placed in the pre-show lobby of 'Country Bear Jamboree' in Critter Country. WDI bought two Peppy cabinets, and the other one was stuck in a warehouse off property. I found it and brought it back to the shop and converted it (which was in really good shape) to a dancing Pinnochio game, which is still currently in the middle of Penny Arcade in Main Street. The Country Bear Jamboree closed a few years back and the 'Hoofin Henry' was converted to a 'Cowboy Woody' from the movie Toy Story. It's currently in the Pioneer Merchantile store in Frontier Land. I love that I was able to leave Disneyland with these fine games from the past, I'll always be able to show my kids what dad made. Thanks again for all the info on this game, if I ever get my hands on another one in the future, your info will be a great help." The clear front that protects Peppy from prying hands can be remade using a 29"x29" piece of .093" thick Lexan. I bought some at Home Depot and this worked well. The original is pre-curved, but the replacement doesn't need this if using Lexan. The Lexan will curve as it is installed and won't crack. Don't try and use acrylic (plexiglass), as that will definately crack. I created new Peppy control panel decals. These were scanned from an original control panel at 300 DPI, and then the artwork cleaned up in Photoshop 6.0 (the PSD file is saved in a compressed 1.5meg ZIP file here). Load this file into Photoshop and print it on some *white* water slide decal paper (except for the words "foot" and "hand", which need to be printed on *clear* decal paper). Be sure to clearcoat the printed decal paper with Krylon Crystal Clear if using an inkjet printer. Sand the top of the control panel with 600 grit, then cut and apply the decals. When done clearcoat over the entire control panel so the decals wear better. I repainted my Peppy cabinet using Krylon's "Make it Stone" Travertine Tan spray finish (Dammon Hardware, but it's a bit too white with not enough "wheat" color) and Valspar's "Weathered Stone" #177298 Coralstone (Lowes, a good match). But a better match are the Plasti-Kote "Fleck Stone" paints (available at Walmart), Santa Fe Sand #11440 and Desert Spice #11469:
|











The Cousino tape cart used in Peppy:


A NOS (new old stock) Hazelle Talking Marionette Peppy Clown #401 :

|
* Email the collector cfh@provide.net * Go to the EM Arcade History index * Go to the Pinball Repair/History index |